お問合せ番号:13900527
| 物件種別 | マンション | ||
|---|---|---|---|
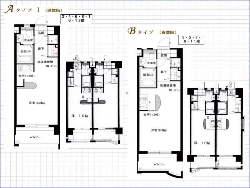
| 所在階 | 10階 | ||
| 間取り | ワンルーム | ||
| 専有面積 | 24.69㎡ | ||
| 採光向き | - | ||
| 駐車場・駐車料 | 有(空きについては要問合) | 19,800円 | |
| 近隣情報 |
|
||
| 火災保険 | 有 | ||
| 保証会社 | - | ||
| 設備 | ガス:都市ガス, インターホン:TVモニター付き, オートロック, 火災報知機, 日当り良好, 2面採光, 眺望良好, 角部屋, デザイナーズ, 通風良好, フローリング, 全居室フローリング, 出窓, 玄関ポーチ, 玄関ホール, 照明器具, ベランダ・バルコニー, 収納スペース, クローゼット, クローゼット数(1), 玄関収納, 下駄箱, バス・トイレ:別室, シャワー, 脱衣所, 給湯, 3点給湯, 温水洗浄便座, ウォームレット, 洗面台, 洗面所独立, シャンプードレッサー, 洗面所にドア, 洗濯機置き場:室内, ガスコンロ設置済, ガスコンロ口数(2), コンロ種類:都市ガス, システムキッチン, カウンターキッチン, 対面キッチン, 冷房のみ, 暖房のみ, エアコン, エアコン台数(1), 24H換気システム, BS, CS, CATV, 地デジ(UHF), CATVインターネット, インターネット使用料無料, 収納たっぷり | ||
| 特記事項 | |||
| 契約形態 | 普通契約 2年 | ||
| 入居可能日 | 相談 | ||
| 備考 | - | ||
情報更新日:2026/02/23
お問合せ番号:13900527
お電話、LINEのお友だち追加、下記お問合せフォームよりお気軽にどうぞ!
また、来店でご相談されたい方、内見(オンラインも対応)を
ご希望の方のご予約も承っております。