ネストピア福岡空港駅前204号

お問合せ番号:

物件概要

賃料 83,000円 敷金 0ヶ月
管理費/共益費 5,000円 礼金 2ヶ月
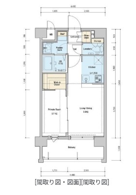
所在階 2階 間取り 1LDK
所在地 福岡県 福岡市博多区 空港前 3丁目
交通
  • 福岡市営地下鉄空港線 「福岡空港」 より徒歩7分
  • JR篠栗線 「柚須」 より徒歩31分
  • 福岡市営地下鉄空港線 「東比恵」 より徒歩42分
  • JR篠栗線 「原町」 より徒歩37分
築年数 1年未満
建物構造 RC
建物階建 6階建
総戸数

間取り・設備

物件種別 マンション
所在階 2階
間取り 1LDK
専有面積 32.78㎡
採光向き -
駐車場・駐車料 近隣 13,200円
近隣情報
  • ショッピングセンター: ユニクロ地下鉄福岡空港駅店 距離659m
  • スーパー: マルショク空港東店 距離436m
  • コンビニ: セブンイレブン博多席田小学校前店 距離245m
  • ドラッグストア: コクミンドラッグ福岡空港店 距離915m
  • ホームセンター: ザ・ダイソーマルショク空港東店 距離434m
  • 郵便局: 亀山郵便局 距離1032m
  • 銀行: 福岡銀行福岡空港支店 距離915m
  • 飲食店: ほっともっと福岡空港前店 距離396m
火災保険 -
保証会社 -
設備 インターホン:TVモニター付き, オートロック, 火災報知機, 日当り良好, 眺望良好, デザイナーズ, 通風良好, フローリング, 全居室フローリング, 照明器具, ベランダ・バルコニー, 収納スペース, ウォークインクローゼット, ウォークインクローゼット数(1), 下駄箱, バス・トイレ:別室, シャワー, 追い焚き, 浴室乾燥機, 脱衣所, 給湯, 3点給湯, 温水洗浄便座, 洗面台, 洗面所独立, シャンプードレッサー, 三面鏡付き洗面化粧台, 洗面所にドア, 洗濯機置き場:室内, ガスコンロ設置済, ガスコンロ口数(2), システムキッチン, カウンターキッチン, 対面キッチン, エアコン, エアコン台数(1), 24H換気システム, BS, CS, CATV, インターネット使用料無料, 収納たっぷり
特記事項 二人入居可, 分譲タイプ
契約形態 普通契約 2年
入居可能日 相談
備考 -

情報更新日:2025/11/04

物件写真

2025年築の人気デザイナーズマンションです!
家具の配置がしやすいリビングですね
対面キッチンで会話が弾みますね
1日の疲れを癒してください
お出かけ前の支度はこちらでされてください
温水洗浄便座付きです
鏡付きで最終チェックバッチリ
使い勝手の良いシューズボックス
こちらは寝室にいかがでしょうか??
急な来客時も安心ですね
日当たり良好のお部屋ですね
日当たり良好のお部屋ですね
オシャレなエントランス
写真、設備、間取りは現状を優先します

ネストピア福岡空港駅前204号』 へのお問合せ

お問合せ番号:

この物件へのお問合せは

株式会社アイネット博多駅前店まで

受付時間10:00~19:00(火曜日定休)

お電話、LINEのお友だち追加、下記お問合せフォームよりお気軽にどうぞ!
また、来店でご相談されたい方、内見(オンラインも対応)を
ご希望の方のご予約も承っております。

お問い合わせ お問合せ ※印は必須項目です

  • ご希望の連絡方法※メールのみ必須

  • お問合せ内容

個人情報のお取り扱いについて

お問い合わせフォームからお客様が入力された個人情報は、資料送付・電子メール送信・電話連絡などの目的でのみ使用いたします。 また、本サービスを円滑に運用するために、お客様の個人情報をサービスご利用の控えとして一定期間保管いたします。 メールアドレス・電話/FAX番号など、ご記入の内容が不明確の場合、当社が本サービスを円滑に運用するために必要な範囲において 直接確認のご連絡をさせていただく場合がありますのであらかじめご了承ください。 個人情報の取扱い方針については、 こちらをご覧ください。

PageUp