お問合せ番号:14200802
| 物件種別 | アパート | ||
|---|---|---|---|
| 所在階 | 2階 | ||
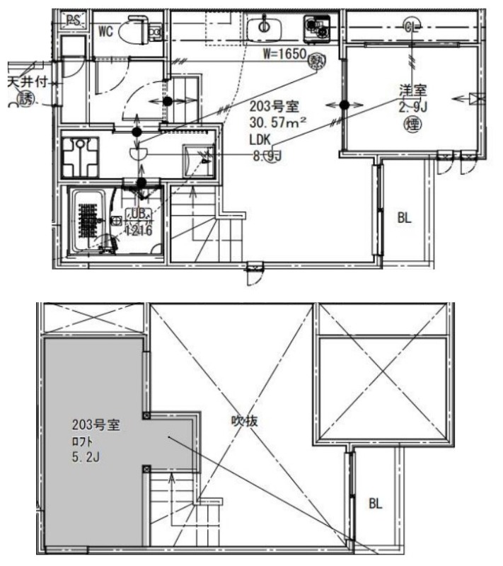
| 間取り | 1SLDK | ||
| 専有面積 | 30.57㎡ | ||
| 採光向き | - | ||
| 駐車場・駐車料 | 近隣 | 11,000円 | |
| 近隣情報 |
|
||
| 火災保険 | 有 | ||
| 保証会社 | - | ||
| 設備 | インターホン:TVモニター付き, 火災報知機, 日当り良好, 2面採光, 眺望良好, 角部屋, デザイナーズ, 通風良好, フローリング, 全居室フローリング, 出窓, ロフト, 玄関ホール, 照明器具, ベランダ・バルコニー, 収納スペース, クローゼット, クローゼット数(1), 玄関収納, 全居室収納, 下駄箱, 天井高下駄箱, バス・トイレ:別室, シャワー, 浴室乾燥機, 脱衣所, 給湯, 3点給湯, TV付バス, 温水洗浄便座, 洗面台, 洗面所独立, シャンプードレッサー, 洗面所にドア, 洗濯機置き場:室内, ガスコンロ設置済, ガスコンロ口数(2), グリル, システムキッチン, 冷房のみ, 暖房のみ, エアコン, 24H換気システム, CATV, 地デジ(UHF), CATVインターネット, インターネット使用料無料, ロフト畳数(5), 収納たっぷり | ||
| 特記事項 | 二人入居可 | ||
| 契約形態 | 普通契約 2年 | ||
| 入居可能日 | 相談 | ||
| 備考 | - | ||
情報更新日:2026/04/17
お問合せ番号:14200802
お電話、LINEのお友だち追加、下記お問合せフォームよりお気軽にどうぞ!
また、来店でご相談されたい方、内見(オンラインも対応)を
ご希望の方のご予約も承っております。